Bekkestua Sør bygges for tett!

Publisert av Anne Beth Moslet den 14.04.21.

 

- Jeg er sjokkert over det høye antall boliger og veldig bekymret for at det grønne preget vil forsvinne helt hvis Bekkestua Sør bygges ut etter de siste planene, sier leder av Bekkestua Vel, Gry Thune Young, som vil sende en protest til kommunen.

TEKST & FOTO: Anne Beth Moslet

- Jeg kan overhodet ikke forstå at dette nye planforslaget fra «Spor Arkitekter AS», som ble lagt frem 26. mars i år, kan være i overensstemmelse med den politiske ledelses visjoner i Bærum kommune for den videre utbyggingen av småhusområdene på Bekkestua, sier Gry i dette intervjuet etter en befaring på Bekkestua Sør den 10. april.

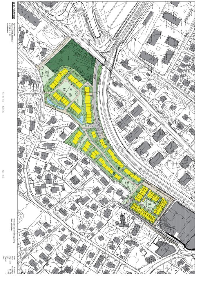
- I illustrasjonsplanen fra Spor Arkitekter beskrives boliger av småhus og rekkehus med opp til tre etasjer i tillegg til at boligene skal «løftes opp» eller «mora-heves» på grunn av myraktive bunnforhold. Dette betyr at noen av de planlagte 72 boligene på - denne lille myra -vil rage opp til ni (9) meter over bakkenivå og ikke bære preg av «småbebyggelse» i det hele tatt. De vil i tillegg være veldig tett inntil de nærmeste naboene i den eksisterende småhusbebyggelse.

- Er dette i tråd med politikernes løfter?

- Nei. Denne foreslåtte utbyggingen er overhode ikke i overenstemmelse med ledende politikeres løfter og intensjoner.  Senest i Budstikka den 25. mars skriver Høyres politikere i planutvalget, Elisabeth Gjølme og Morten Skauge, at «Høyre i Bærum gikk til valg på en bedre balanse mellom vekst og vern, og da i favør av bevaring av grønne lunger og naturområder. I dette perspektivet må vi se utviklingen av Bekkestua.»

- Dette utsagnet stemmer ikke med det planutkastet som nå er lagt frem av Spor Arkitekter. Snarere tvert i mot.  Her foreslår man det facto å bygge igjen den siste grønne lungen på Bekkestua med en så tett utnyttelsesgrad at det knapt finnes et eneste glimt av grønt gress mellom husene?

- Tranghetene og det faktum at innfartsveien stanser halvveis inn på området med områdets eneste parkeringsplasser (antall ?). Det at den videre ferdselsåre synes å gå langs en smal tursti, vitner ikke om noen god fremkommelighet for de mange barnefamilier som tydeligvis skal bo her uten verken garasje, carport og eller parkeringsplass ved egen bolig.  Før i tiden var det jo visse krav til utnyttelsesgrad ved småhusbebyggelse. Finnes de ikke lenger? Spør Gry.

- Men er ikke dette såkalt «klima-klokt» ? 

- Jeg lurer vel egentlig på om dette virkelig er fremtids- og trivselsrettet boligbygging for småbarnsfamilier og andre som er vant til at bil har vært - og fremdeles er - et vanlig og moderne fremkomstmiddel for folk flest.  Jeg er sterkt i tvil om at denne form for tidens såkalte «klima-kloke» boligbyggingen i det hele tatt er fremtidsklok?

- En fremtidsklok boligbygging på Bekkestua – og i Bærum for øvrig - bør snarest kjenne sin besøkelsestid og vurdere hvilke naturperler Bærum kommune nå er i ferd med å ødelegges for all fremtid. Vil innbyggerne og velgerne på Bekkestua virkelig godta at dagens politikere får gjennomføre en boligutbygging som tar mere hensyn til utbyggernes lommebok enn bevaring av friområder, grønne lunger og fremtidige trivsel?

 - Jeg tror utbyggingen på Bekkestua går i feil retning.  Jeg vil appellere til lokalpolitikerne om å tenke «fremtidsklokt» og la kommunen fortsatt bære preg av å være en åpen og trivelig kommune hvor utbyggingen skjer mere skånsomt og naturvernvennlig enn det vi nå opplever på Bekkestua.

- Dere har protester på tidligere planer for dette området. Hva gjør dere nå?

- Bekkestua Vel vil selvsagt sende inn sine innsigelser til reguleringsmyndighetene i Bærum kommune mot disse alt for inngripende utbyggingsplanene. Vi be om at området - av hensyn til beboerne og deres barn - ikke bebygges så tett at det ikke en gang blir plass til en liten naturpark, avslutter Gry Thune Young.

BILDER: 1) BEFARING BEKKESTUA SØR: Fra venstre: Sunniva Schjetne, Gry Thune Young og Per Olav Ramstad på Bekkestua-jordet.

2) FRA KOMMUNENS HJEMMESIDE: Illustrasjonsplan av 29.mars 2021 fra Spor Arkitekter AS