Snart slutt for Bekkestua-jordet

Publisert av Trond Brevik den 09.05.21.

Planutvalget skal i møte 20. mai ta stilling til planene for Bekkestua Sør. Mange av våre velmedlemmer spør seg om området bør bygges ut i det hele tatt. Bildet viser en skoleklasse som leker på jordet. Det er ikke så mange åpne områder igjen rundt Bekkestua - og vi skal bli stadig flere innbyggere - slik at de grønne åpningene vil bli stadig mer verdifulle. 

Bekkestua Vel har invitert planutvalgets medlemmer til en befaring før beslutningen fattes. Både planutvalgsleder Eirik Bøe fra Venstre og nestleder Elisabeth Gjølme fra Høyre har svart. Elisabeth Gjølme skriver: Dersom saken kommer opp på Planutvalgets møte 20. mai, forutsetter vi at Bekkestua sør inngår i befaringsplanen før møtet. Da vil både utbyggere og naboer/vel kunne delta og gi sine kommentarer. Dette er i tråd med normal saksbehandling.


Velforeningen har i sine innspill til kommunen (seneste innspill nå gjengitt under og vedlagt som pdf) spurt om hvor tett det er nødvendig å bygge ut, og hvordan noe av det åpne og grønne kan bevares.  Når det gjelder "klimaklok"-argumentet - å bygge høyt og tett nær T-banen  - så viser Bekkestua Vel til at det har vi allerede besluttet å gjøre - i gigantisk stor skala - i Bekkestua Sentrum og tilgrensende område i Kleivveien Nord. Vi har faktisk knapt sett starten av en gigantisk "klimaklok" utbygging allerede besluttet for vårt nærområde. 

 

Her er velforeningens brev til kommune og planutvalg (også vedlagt som pdf): 

 

Bekkestua vel

v/ Gry Thune Young

bekkestuavelforening@gmail.com

gthune@online.no

 

 

Bærum  kommune

Regulering

post@baerum.kommune.no

                                                                                    Bekkestua, 29. april. 2021

 

Bekkestua sør -  områderegulering 15/152661

Under henvisning til Bærum kommunes oppfordring , vil vi igjen komme med innspill til planforslaget  som er under utarbeidelse.

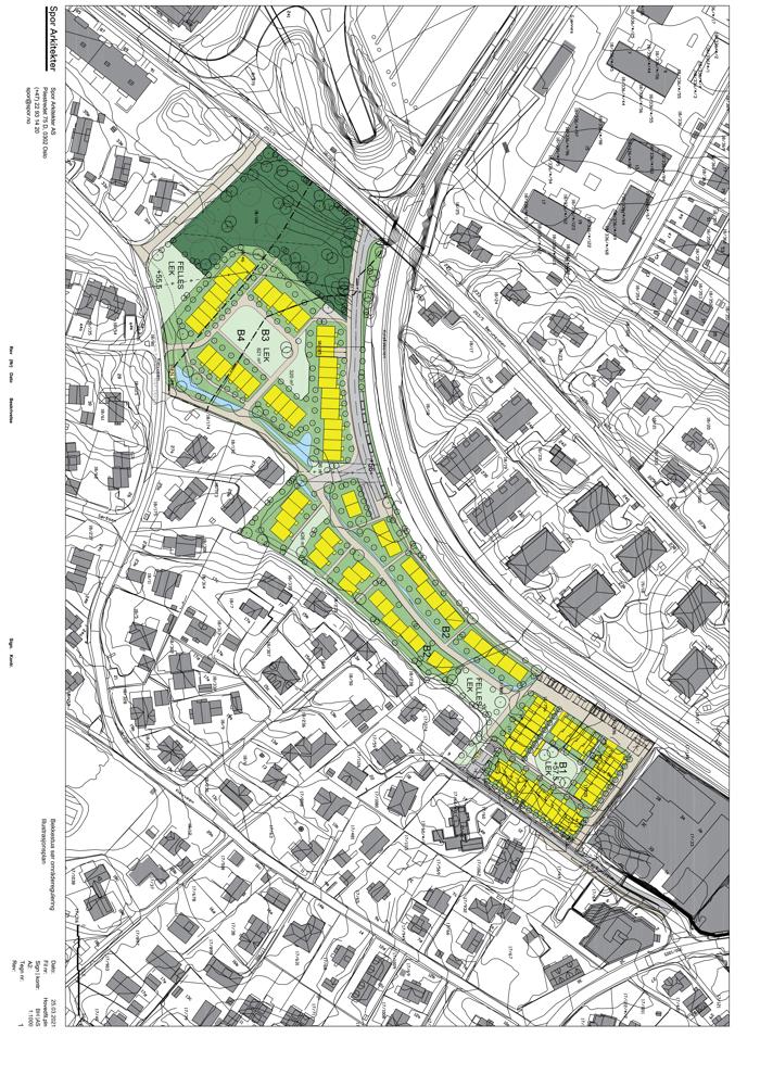
Illustrasjonsplanen av 26.mars 2021 fra SPOR Ark. AS  over Bekkestumyra viser at man

fremdeles går inn for en tett og sterk fortetting.

Men er det nødvendig med blokk bebyggelse langs T-banelinjen, og må det lille inneklemte jordet ha 72 hus?

Man viser til  utbyggingen på Gjønnes jordet hvor resultatet er blitt en tett utnyttelse av småhus som ligger i skyggen av blokkene foran. Når man står oppe på turområdet og ser ned til boområdet er arkitekturen av en slik art at det minner om en tett og lite trivelig ”brakkeby”.

Vi mener det samme uttrykket vil skje på Bekkestujordet. Men her har man ikke det åpne landskapet bak, tvert imot.  Selv tomten, den gamle frukthagen som skiller Frøytun og jordet er på illustrasjonsplanen  prosjektert med enda en rad med blokker.

Området har knapt 60 m mellom Gnr17 bnr 373 og T-banelinjen. Lekeområdet som foreslås vil bli som de enkeltstående lekeapparater mellom blokkene på Gjønnes.

Vi foreslår at blokkene fjernes og tomten opparbeides til et vakkert parkområde med tilsvarende trær og busker, turvei, benker og lekeapparater.

Skal man følge barn eller eldre til nærparken må man kunne sette seg ned omgitt av det grønne. En vakker og nødvendig nærpark til glede for store og små, unge og eldre.

Dessuten vil det være en god overgang,  en nødvendig  grønn lunge mellom to forskjellige byggeprosjekter.

For øvrig viser vi til tidligere innspill fra medvirkningsgruppen av 28. 02.18 (forslag til rammer for regulering),  samt våre brev av 18.11.19 og  06.03 .20.

og våre vedlegg av i dag.

 

Vennlig hilsen fra

 

Styret i Bekkestua Vel

Gry Thune Young